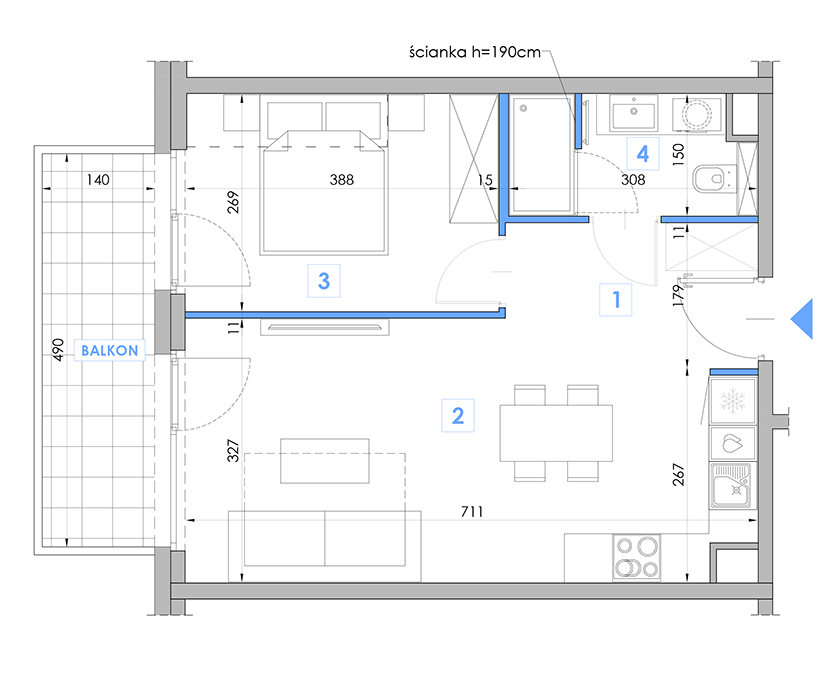
Budynek C Lokal 306 Kondygnacja: Kondygnacja III Powierzchnia całkowita: 40.75 m2 Ilość pomieszczeń: 2P+AK Status: Wolne Pomieszczenia: Korytarz: 4.83m2 Salon + aneks kuchenny: 21.77m2 Sypialnia: 9.85m2 Łazienka: 4.30m2 Balkon: 6.86m2 Pobierz kartę apartamentu Poprzedni lokal Następny lokal